LARGE PROJECT

【石垣島ロハスファーム構想】

表紙

 

【石垣島ロハスファーム構想】

立地・市場特性

 

【石垣島ロハスファーム構想】

トータルコンセプト

 

【石垣島ロハスファーム構想】

事業の仕組

 

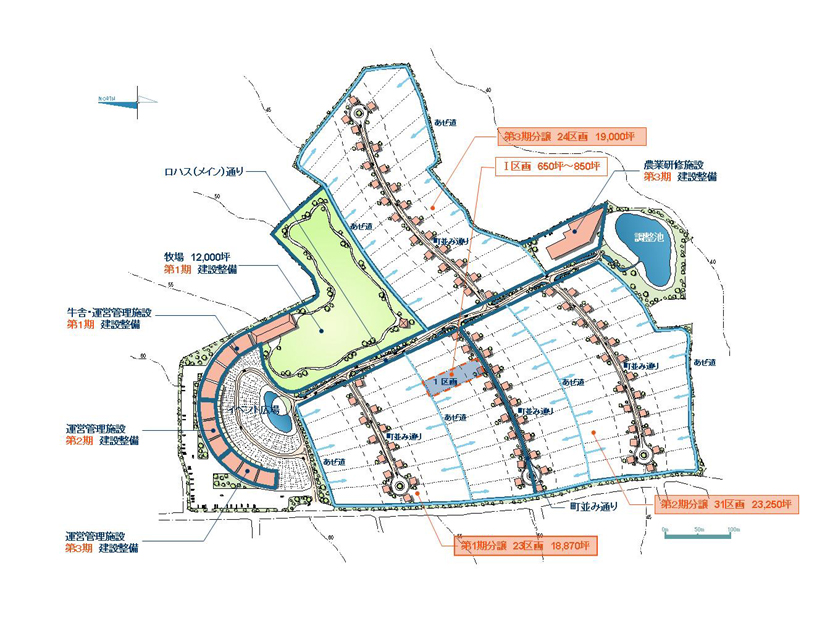
【石垣島ロハスファーム構想】

マスタープラン

 

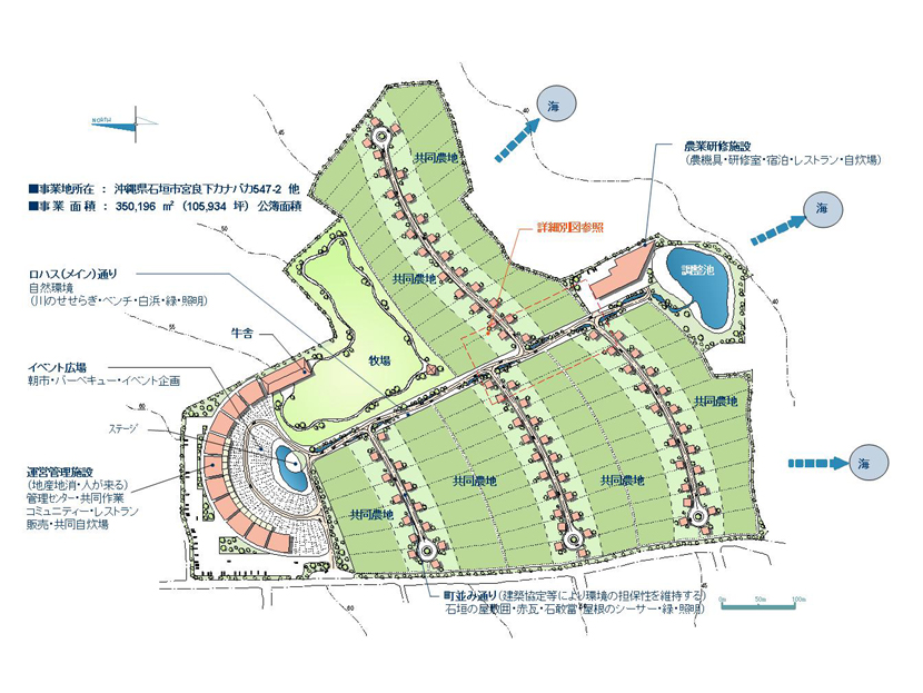
【石垣島ロハスファーム構想】

メイン街路・農業家屋・共同農地

 

【石垣島ロハスファーム構想】

街区・動線計画・販売区画